Загружаю...

0(95) 605-36-75
0(96) 571-25-06
an.khg216@gmail.com
SF-3-234-438

Продам 2-комнатную квартиру в новостройке, ЖК «Феличита»

Местоположение: Харьков, Пятихатское направление, Сокольники, Профессорская ул., 32

Карта
2 83/15 м² 2/6 93 000 $
Продам 2-комнатную квартиру в новостройке, ЖК «Феличита»

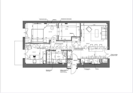
Зроблений ремонт під чистове оздоблення з гарним плануванням. В квартирі 2 окремі спальні кімнати, велика гардеробна кімната, простора вітальня поєднана з кухнею, окремий власний тамбур, балкон . Автономне двухконтурне опалення із заміненим котлем BUDERUS та теплою підлогою. Зроблені всі необхідні комунікації під побутову техніку, сантехніку, під систему очищення води, а також під кондиціювання. Стеля зроблена з гіпсокартону. Вхідні двері замінені на високоякісні та добротні. На підлозі покладена іспанська плитка PARCELANOSA, а також повністю на стінах в санвузлі В спальних кімнатах встановлені стильні вертикальні радіатори опалення.
Додатково можливий продаж паркомісця під будинком.

Основная информация

Цена:  
- за объект 93 000 $
- за кв. метр ≈1 119 $
Ремонт: без отделочных работ
Класс жилья: элит
Типовая планировка: нестандартная планировка
Число комнат: 2
Площадь общая, м²: 83.10
Этаж: 2
Этажность: 6
Год постройки: 2021-2025, новострой
Санузлов: 1
Расположение: центр города

Дополнительно

Коммуникации

Вода:
центральная;
Отопление:
центральное;

Инфраструктура и сервис

Общественный транспорт:
метро - Ботанический сад (15 мин. пешком, 15 мин. на транспорте);

Прочее

Дата обновления информации:
03.11.2025 11:44;