Загружаю...

0(95) 605-36-75
0(96) 571-25-06
an.khg216@gmail.com
SF-3-232-732

Продам 2-комнатную квартиру

Местоположение: Харьков, Алексеевское направление, Павлово Поле, 23 Августа ул., 13

Карта
2 42/7 м² 4/5 37 000 $
Продам 2-комнатную квартиру

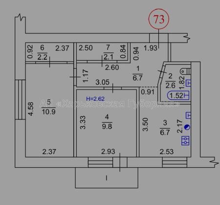
Перепланирована (комнаты раздельные). Перепланировка внесена, техпаспорт новый Все поменяно (стояки, отопление, проводка, МПО, входная дверь) Установлен инверторный кондиционер Состояние - заходи живи Горячая вода - газовая колонка Счётчики на свет, воду, газ Мебель и техника частично остаётся (диван, стенка, кухня, холодильник, стиралка, микроволновка) Балкон застеклён, и полностью сделан, внутри обшит пластиком, есть встроенный шкаф) На полу ленолеум 2 встроенных шкафа - купе Санузел совмещён Интернет, кабельное от Триолан Ремонт в подъезде Тихий и уютный двор, все что нужно в пешей доступности (рядом остановка транспорта, до метро 10 минут пешком, рядом класс, чудо маркет, посад, киоски, аптека во дворе

Основная информация

Цена:  
- за объект 37 000 $
- за кв. метр ≈883 $
Ремонт: советский ремонт
Класс жилья: эконом
Схема комнат: раздельная
Число комнат: 2
Площадь общая, м²: 41.90
Этаж: 4
Этажность: 5
Санузлов: 1
Балконов: 1

Дополнительно

Коммуникации

Вода:
центральная;
Отопление:
центральное;

Параметры объекта

Материал стен:
кирпич;

Прочее

Дата обновления информации:
30.10.2025 09:33;